情報更新日:2025年12月18日/広告有効期限:なし
表示閲覧回数(過去30日間):38
お急ぎの方はお電話からお気軽にどうぞ!
095-818-7837 営業時間 / 9:00〜17:00 定休日 / 日曜日
>物件詳細情報
| 基本情報 | |
|---|---|
| 物件番号 | 10007805683 |
| 店舗形態 | 事務所, 店舗 |
| オススメ業種 | 事務所, 医療関係, 塾・学校・教育関係 |
| 物件名 | SA御船蔵ビル |
| 物件の状態 | 空き |
| 引越し時期 | 即 |
| 契約形態と期間 |
普通契約期間:2年間22,000円 |
| 所在地・交通 | |
|---|---|
| 所在地 | 長崎県長崎市御船蔵町-1-4 |
| 交 通1 | 長崎電軌1系統八千代町駅 徒歩1分 |
| 交 通2 | - |
| 賃料 | |
|---|---|
| 賃 料 | 697,400円(税込) |
| 敷 金 |
6ヶ月 |
| 精算方法 | 実費 |
| その他 | |
|---|---|
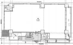
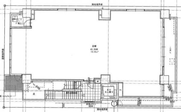
| 備考 | 1F駐車場分も含んだ賃料設定となります。 図面は竣工時のものとなりますので現況を優先致します。 |
| 建物 | |
|---|---|
| 建物構造 | 鉄筋コンクリート造 |
| 建物階建て |
地上9階 |
| 施工年月 | 2020(令和2)年 03月 |
| 募集物件の階数 | 地上 2階 |
| 契約面積 | 143.45m2(43.39坪) |
| 用途地域 | 商業地域 |
| 設備 | |
|---|---|
| 水道 | 公営 |
| 下水道 | 公共下水 |
| ガス | LPG |
| エアコン | 無 |
| トイレ | 無 |
| 給湯室 | 無 |
| キッチン | 無 |
| ネット環境 | 無 |
| 床仕様 | OAフロア |
| セキュリティ | 無 |
| 利用時間 | 24時間 |
| シャッター | 無 |
| 照明設備 | 無 |
| 内装業者指定 | 無 |
| 駐車場 | |
|---|---|
| 状 況 | 空有 |
| 駐車料金 | 25,300円(税込) |
| 空き台数 | 8台 |
| 敷 金 | 1ヶ月 |
| 取引情報 | |
|---|---|
| 取引態様 | 媒介 |
| 客付 | 可 |
この物件をチェックした人はこんな物件も見ています
- 諫早エリア1F店舗です!様々な業種でご検討いただけますのでお気軽にお問合せください♪

長崎県諫早市八坂町-7-18
120.23m2(36.37坪)
154,000円(税込)
- 平和公園周辺の大通り沿いに面しており、立地としては抜群にいい環境です。バスや路面電車からのアクセスもいい為、事務所利用に限らず集客をするにも適してます!

長崎県長崎市松山町4-40号
304.75m2(92.19坪)
440,000円(税込)
- 路面電車、バス通りからの立地がよく事務所ご利用もしやすい物件となります。

長崎県長崎市浜口町7-4
50.80m2(15.37坪)
93,500円(税込)
- フリーレント対応相談可能!長崎市内各方面へアクセスしやすく、交通の面でもとても利便性の良い立地の部件です!契約開始からのフリーレントもご相談下さい。

長崎県長崎市馬町-24
127.71m2(38.63坪)
382,437円(税込)
- 前面の国道34号線は長崎バイパスを経由して長崎自動車道へ直結。各方面への交通アクセスも快適です。契約開始からのフリーレントもご相談下さい。

長崎県長崎市馬町-24
80.72m2(24.42坪)
201,465円(税込)
今日チェックした物件
お急ぎの方はお電話からお気軽にどうぞ!
095-818-7837 営業時間 / 9:00〜17:00 定休日 / 日曜日


095-818-7837















095-818-7837