情報更新日:2024年12月09日/広告有効期限:なし
表示閲覧回数(過去30日間):63
お急ぎの方はお電話からお気軽にどうぞ!
095-818-7837 営業時間 / 9:00〜17:00 定休日 / 日曜日
>物件詳細情報
| 基本情報 | |
|---|---|
| 物件番号 | 10007805866 |
| 店舗形態 | 事務所, 店舗, 店舗(飲食店可) |
| オススメ業種 | 物販関係, 塾・学校・教育関係, 事務所 |
| 物件名 | M2銅座ビル2番館 |
| 物件の状態 | 空き |
| 引越し時期 | 即 |
| 契約形態と期間 |
普通契約期間:2年間20,000円 |
| 所在地・交通 | |
|---|---|
| 所在地 | 長崎県長崎市銅座町-4番20号 |
| 交 通1 | 長崎電軌1系統新地中華街駅 徒歩1分 |
| 交 通2 | - |
| 賃料 | |
|---|---|
| 賃 料 | 440,000円(税込) |
| 敷 金 |
2,400,000円 |
| 精算方法 | 実費 |
| その他 | |
|---|---|
| 備考 | 分割相談可です! |
| 建物 | |
|---|---|
| 建物構造 | 鉄骨鉄筋コンクリート造 |
| 建物階建て |
地上4階 |
| 施工年月 | 1977(昭和52)年 03月 |
| 募集物件の階数 | 地上 2階 |
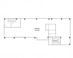
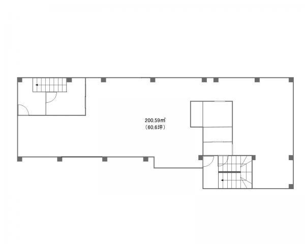
| 契約面積 | 200.59m2(60.68坪) |
| 用途地域 | 商業地域 |
| 設備 | |
|---|---|
| 水道 | 公営 |
| 下水道 | 公共下水 |
| ガス | 都市ガス |
| エレベータ | 無 |
| エアコン | 無 |
| トイレ | 無 |
| 給湯室 | 無 |
| キッチン | 無 |
| ネット環境 | 無 |
| 床仕様 | スケルトン |
| セキュリティ | 無 |
| 利用時間 | 24時間 |
| シャッター | 無 |
| 照明設備 | 無 |
| 内装業者指定 | 無 |
| 駐車場 | |
|---|---|
| 状 況 | 無し |
| 取引情報 | |
|---|---|
| 取引態様 | 媒介 |
| 客付 | 可 |
この物件をチェックした人はこんな物件も見ています
- 正面に出島の見える1Fテナントの募集となります。事務所だけでなく会員制のサロンや飲食店舗等もご相談ください!

長崎県長崎市江戸町-2番31号
60.32m2(18.25坪)
187,000円(税込)
- 夢彩都の向かいという人流・交通量が多い立地です。内装リニューアルを施されており、初期費用を抑えることにも繋がり魅力的です!

長崎県長崎市元船町11-14
77.07m2(23.31坪)
205,128円(税込)
- 時津町役場そばの事務所に空きが出ました!元々事務所として使用しておりましたので、内装は事務所仕様となっております。近隣駐車場も2台あります。

長崎県西彼杵郡時津町浦郷-273-3
99.12m2(29.98坪)
77,000円(税込)
- 長崎駅近くの2階事務所です。近隣駐車場は建物より10mの距離にあります。事務所向け内装となっております。 保証会社加入を要する場合有[ジェイリース社(初回保証料+手数料:賃料1.1か月、継続保証料:家賃0.1か月分/年)]

長崎県長崎市元船町-1-9
160.50m2(48.55坪)
275,000円(税込)
- 電停まで徒歩1分!交通の面でも利便性の良い立地の物件です!

長崎県長崎市恵美須町4-7
85.95m2(26.00坪)
173,800円(税込)
今日チェックした物件
お急ぎの方はお電話からお気軽にどうぞ!
095-818-7837 営業時間 / 9:00〜17:00 定休日 / 日曜日


095-818-7837


















095-818-7837